vasb@nvef-irag.eh +7 495 108-99-27

Клапан противопожарный КПД 120-ДУ(УВ-К)

Дымовые клапаны используют в приточно-вытяжных системах противодымной вентиляции. Их назначение — удаление дыма и газов во время пожара. В нормальном состоянии заслонки данного типа клапана находятся в закрытом положении. В случае возникновения пожара заслонки данного типа клапана открываются на этаже очага возгорания, на остальных же этажах и помещениях заслонка остается в закрытом положении и создает герметичную преграду, чтобы предотвратить распространение продуктов горения.
Клапаны сертифицированы в соответствии с требованиями технического регламента Евразийского экономического союза «О требованиях к средствам обеспечения пожарной безопасности и пожаротушения» (ТР ЕАЭС 043/2017).
  • БрендВентар-С
  • ИсполнениеДымоудаления (дымовые)
  • Наименование клапанаКПД

Описание НЗ

Типы клапана:

  • К - канальный
  • С - стеновой
  • КС - канальный без вылета заслонки за лицевую сторону
  • КЛ - канальный многостворчатый
  • СЛ - стеновой многостворчатый
  • УВ-К - канальный с уменьшенным вылетом заслонки
  • УВ-С - стеновой с уменьшенным вылетом заслонки

Опции:

  • К - клеммная коробка
  • РК - клеммная коробка (распаячная)
  • МС - морозостойкое исполнение
  • МС (ГК) - морозостойкое исполнение + греющий кабель по периметру
  • МС (УП) - морозостойкое исполнение + греющий кабель по периметру + греющий кабель на приводе
  • ТРУ TS - терморазмыкающее устройство
  • AISI - коррозионностойкое исполнение (любая марка нерж.стали)
  • 1*D(A-B)/2*D(A-B) - переходник с прямоугольного клапана на круглый клапан

Предел огнестойкости клапанов:

  • EI 120
- в режиме нормально закрытого дымового
Клапаны не подлежат установке в помещениях категорий А и Б по взрывопожароопасности. Окружающая среда не должна содержать агрессивных паров и газов в концентрациях, разрушающих металлы, лакокрасочные покрытия и электроизоляцию.

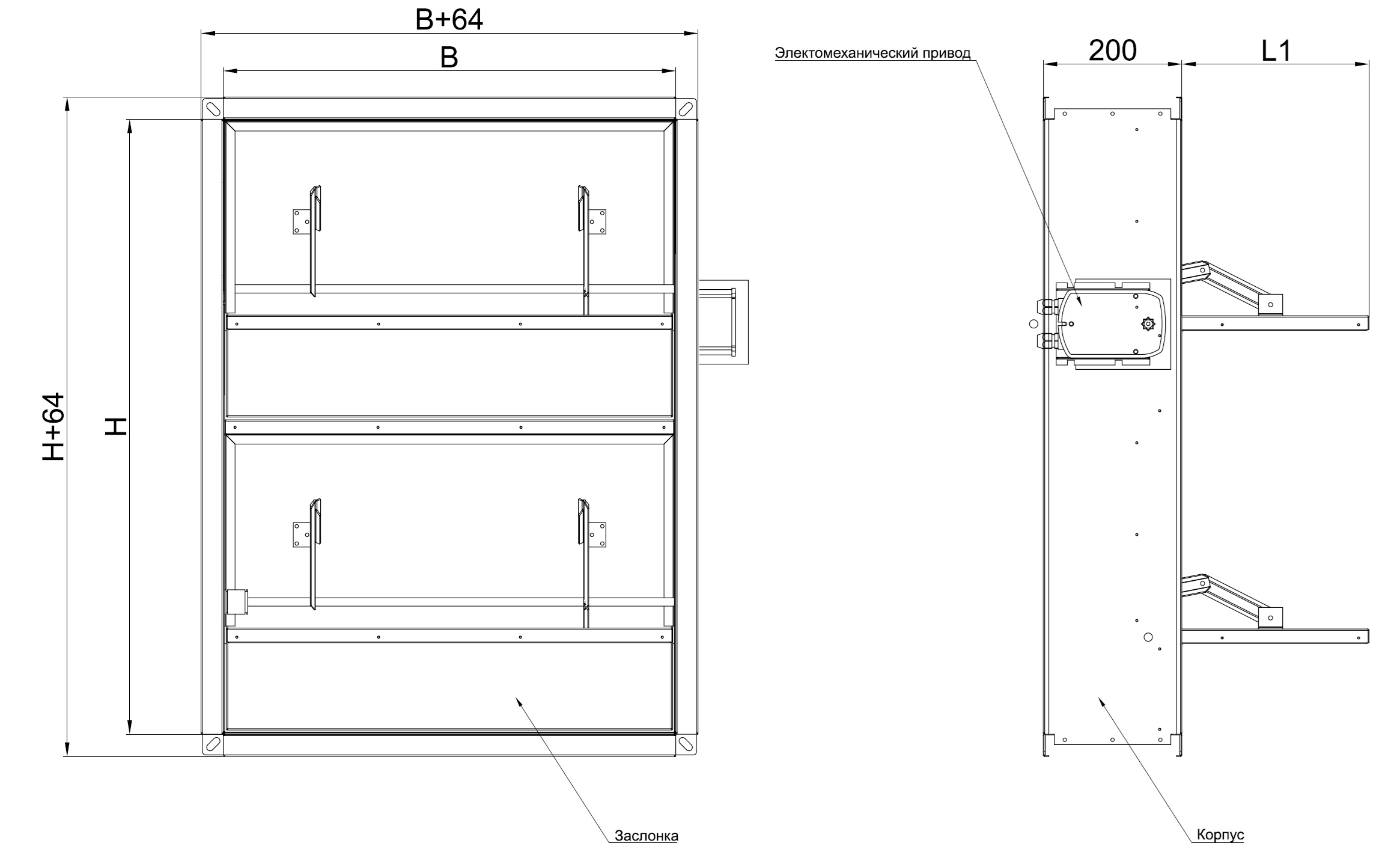
Нормально закрытый клапан КПД ДУ состоит из:

  • корпуса, изготовленного из оцинкованной или нержавеющей стали толщиной 1 мм
  • листовых одной или нескольких лопаток поворотного типа внутри клапана
  • привода, расположенного снаружи или внутри корпуса
Корпус прямоугольного клапана, в зависимости от исполнения, имеет глубину от 200 мм до 250 мм и конструктивно аналогичен отрезку воздуховода такой же длины. Корпус стенового клапана, в зависимости от исполнения, имеет глубину от 160 мм до 250 мм. Фланец на канальных клапанах шириной 30 мм, на стеновых клапанах 45 мм. Заслонки выполнены из оцинкованной или нержавеющей стали.
Клапан КПД нормально закрытые канального и стенового типов прямоугольного сечения сохраняют работоспособность вне зависимости от пространственной ориентации, но при условии горизонтального расположения оси вращения их лопаток. Пространственная ориентация клапана при его установке должна быть указана при заказе.

Двигательные механизмы, применяемые на клапанах НЗ:

  • Электропривод BELIMO реверсивный
  • Электропривод AIRS реверсивный
  • Электромагнитный привод
220/24 В - выбор на все приводы

Клапаны КПД ДУ канального исполнения:

  • К - канальный
  • КС - канальный без вылета заслонки за лицевую сторону
  • КЛ - канальный многостворчатый
  • УВ-К - канальный с уменьшенным вылетом заслонки

Клапан противопожарный КПД 120-ДУ(УВ-К)

Модификация клапана:

многостворчатые канальные УВ, где отсутствует вылет за лицевую сторону корпуса клапана

Чертеж клапана EI 120

Технические характеристики ДУ

Пример заказа НЗ

Цена по запросу

Кол-во:

Заказать консультацию

Оставьте заявку на обратную связь и мы поможем с подбором необходимого оборудования и с консультацией

Я согласен(сна) на обработку персональных данных

Контакты