vasb@nvef-irag.eh +7 495 108-99-27

Клапан противопожарный КПП 90(120)-НЗ(КОМ-3)-БП

Клапаны противопожарные (НЗ)КОМ предназначены для установки в приточно-вытяжные каналы как противодымных, так и общеобменных систем вентиляции и служат для их открытия при включенных вентиляторах, а также исключают потери тепла при выключенных вентиляторах. Устанавливаются у вентиляторов. Клапаны имеют огнестойкость по потере плотности (Е) и по потере теплоизолирующей способности (I). Максимальная скорость воздушного потока 25 м/с. Минимальная скорость воздушного потока 8 м/с.
  • БрендВентар-С
  • ИсполнениеНормально закрытые специализированные
  • Наименование клапанаКПП
Удельное сопротивление клапана дымогазопроницанию 13000 м3/ч. Климатическое исполнение УХЛ2 по ГОСТ 15150-69. При комплектации электроприводом с толкательным механизмом, необходимо утеплять электроприводом греющим кабелем МС(УП).

Нормально закрытый клапан НЗ(КОМ) состоит из:

  • корпуса, изготовленного из оцинкованной или нержавеющей стали толщиной 1 мм
  • огнеупорных одной или нескольких заслонок из негорючих минеральных материалов

Предел огнестойкости клапанов КОМ:

  • EI 90
  • EI 120
    - в режиме нормально закрытого

Двигательные механизмы, применяемые на клапанах КОМ:

  • Пружина растяжения
  • Электропривод BELIMO реверсивный
  • Электропривод AIRS реверсивный
  • Электропривод BELIMO с возвратной пружиной
  • Электропривод AIRS с возвратной пружиной

220/24 В выбор на все приводы
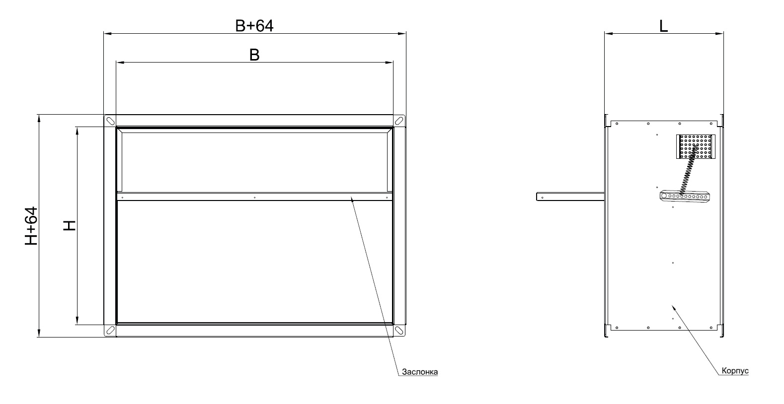
Клапан противопожарный (НЗ)КОМ состоит из корпуса, изготовленного из оцинкованной или нержавеющей сталей толщиной 1 мм, огнеупорных одной или нескольких заслонок из негорючих минеральных материалов. Предусмотрена возможность комплектации электромеханическим приводом в качестве толкателя. Размещение привода снаружи клапана.
Корпус имеет глубину 300 мм и конструктивно аналогичен отрезку воздуховода такой же длины. Фланцы шириной 30 мм. Заслонка коробчатого типа набивается огнезащитным материалом. В качестве уплотнителя используется противопожарный уплотнитель (термоактивная лента).

Принцип работы

Перемещение заслонки в рабочее положение происходит при воздействии включенного вентилятора. Закрытие клапана в исходное положение, при отключении вентилятора, обеспечивается за счет внешних пружин и/или гравитации. В дополнительную комплектацию входит электропривод (с возвратной пружиной или реверсивного действия, в зависимости от системы управления), который устанавливают на стенку, параллельную оси заслонки. Функция привода состоит в том, чтобы сорвать заслонку специальным толкателем при ее обледенении Электропривод должен быть возвращен в изначальное положение.

Клапаны КПП НЗ(КОМ) прямоугольные:

  • клапан прямоугольного сечения

Клапан противопожарный КПП 90(120)-НЗ(КОМ-3)-БП

Чертеж клапана EI 90(120)

Технические характеристики НЗ(КОМ)

Пример заказа

Цена по запросу

Кол-во:

Заказать консультацию

Оставьте заявку на обратную связь и мы поможем с подбором необходимого оборудования и с консультацией

Я согласен(сна) на обработку персональных данных

Контакты