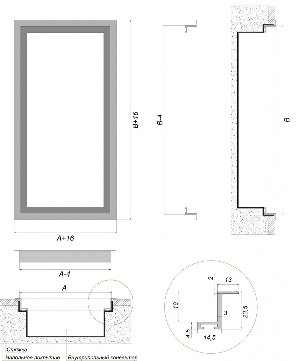
Рамка из Z-образного профиля позволяет монтировать конвектор в любую конструкцию пола. Скрывает стык между корпусом конвектора и напольным покрытием. Обеспечивает высокую жесткость корпуса конвектора.
Поставляется в цвет решетки.
Рамка имеет фланец 13 мм и основание для установки рулонной решетки. Определяющими размерами являются внутренние размеры конвектора. Профиль поставляется цельным изделием в виде рамки. Возможна поставка погонными метрами кратно 3 метрам.
Габаритно-посадочные размеры рамки для напольных решеток FV-Z
АхВ внутренние размеры конвектора


Цена по запросу
Оставьте заявку на обратную связь и мы поможем с подбором необходимого оборудования и с консультацией