Наружная вентиляционная решетка клапан с электроприводом регулируемая изготавливается из алюминиевой рамы 100х50 мм. и подвижных ламелей с механизмом позволяющим открывать и закрывать поток воздуха проходящий через решетку. Используются для проветривания помещений различного назначения. Выполняет функцию клапана и наружной решетки.
Управление от привода 220/24 Вольт. Возможно автоматическое открывание по схеме “открыто-закрыто” или ступенчатая регулировка.
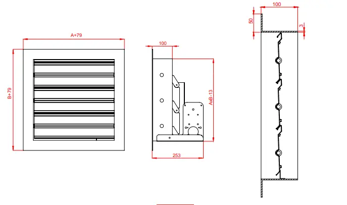
Вентиляционные решетки РМВ100 с горизонтальным расположением подвижных жалюзи, регулируемых с помощью механизма, предназначены для удаления воздуха и перекрывают сечение любого строительного проема, Применяются в системах вентиляции и кондиционирования воздуха в помещениях различных типов и назначений.
Решетка РМВ100 состоит из рамы выполненной из уголка 50х100 мм. Подвижно закрепленные горизонтальные жалюзи отклоняются в верх-низ с помощью привода, расположенной с задней части решетки. Площадка под привод расположена с правой части решетки, если смотреть спереди на решетку. В качестве защитно-декоративного покрытия применяется порошковая полиэфирная краска. Стандартный цвет покрытия белый RAL 9016. Возможно окрашивание в любой другой цвет согласно каталогу RAL.
По дополнительному запросу решетка может поставляться с приводом

Цена по запросу
Оставьте заявку на обратную связь и мы поможем с подбором необходимого оборудования и с консультацией