Новая запатентованная высокоэффективная серия щелевых диффузоров скрытого монтажа
Линейный щелевой диффузор ALM предназначен для скрытой установки в систему вентиляции и кондиционирования в качестве конечного декоративного элемента инженерной системы в жилых, торговых, и офисных помещениях. Диффузоры встраиваются в стены или потолок, изготавливаемые из гипсокартона и металлического каркаса.
Диффузор выполнен в виде рамки из полых металлических профилей и регулируемого дефлектора. Возможна поставка без дефлектора.

Конструкция вентиляционного щелевого диффузора обеспечивает эффективное распределение воздушных потоков с сохранением живого сечения диффузора и объема подаваемого воздуха при любом положении дефлектора.
Подвижный дефлектор индивидуальной формы, специально разработанной для формирования направления воздушных потоков от вертикального до горизонтального потока (от 0° до 5,5° относительно плоскости потолка). Для удобства регулировки дефлектора в наружной части выполнен выступ, благодаря которому можно легко регулировать дефлектор влево и вправо. При любом положении дефлектора сохраняется живое сечение диффузора и соответствует входному сечению, что повышает производительность диффузора и акустический комфорт потребителя.
Дефлектор можно изготавливать и устанавливать сегментно по длине диффузора. Такая конструкция позволяет двигать его разнонаправлено, что позволяет формировать направление струи в обе стороны одновременно.
| Модификация диффузоров | ||
|---|---|---|
| ALS Small (20-30) |
ALM Medium (40-50) |
ALL Large (60-70) |
![]() |
![]() |
![]() |

| F1
одиночная секция |
![]() |
|---|---|
| E1
концевая секция |
![]() |
| F2
одиночная секция |
![]() |
| E2
концевая секция |
![]() |
| M
промежуточная |
![]() |

| Угловые секции | ||
|---|---|---|
| U1 – потолочная | U2 – стеновая внешняя | U3 – стеновая внутренняя |
![]() |
![]() |
![]() |
Для подключения диффузоров к системе воздуховодов используется камера статического давления – КСД или КСР.
Камера статического давления является элементом систем вентиляции и кондиционирования воздуха, они обеспечивают равномерное распределение воздушных масс через сечение решетки. КСД состоит из стального корпуса с круглым патрубком для подсоединения к воздуховоду. КСР дополнительно оснащены устройством, регулирующим объем подаваемого воздуха, которое устанавливается во входном патрубке.

Уменьшенная камера статического давления позволяет максимально сохранить полезную площадь помещения за счет уменьшения монтажного пространства. Размер монтажного пространства (W) напрямую зависит от размера подключаемого воздуховода – чем меньше воздуховод, тем меньше адаптер для диффузора. В каталоге приведены рекомендуемые размеры воздуховода, но по запросу заказчика возможно изготовить адаптер с любой врезкой.



| 2 листа ГКЛ по 12,5 мм | 1 лист ГКЛ 12,5 мм |
![]() |
![]() |
| 2 листа ГКЛ по 9,5 мм | 1 лист ГКЛ 9,5 мм |
![]() |
![]() |
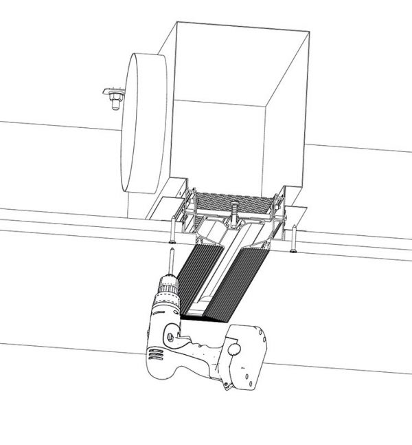
| 1. До монтажа подвесных потолков установите на потолке камеру статического давления с диффузором. Для этого в потолке вбиваются анкера и вкручиваются шпильки. | 2. Установите направляющие потолочные профили ПП 28х27 к монтажной раме диффузора саморезами 3,5х9,5. Для позиционирования профиля предусмотрены насечки на корпусе диффузора. |
![]() |
![]() |
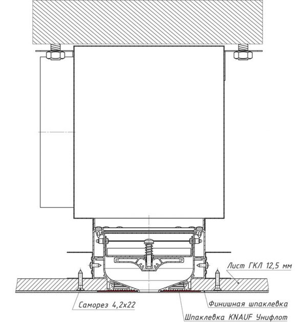
| 3. Закрепите гипсокартон (1 или 2 листа по 12,5 мм) саморезами 4,2х32 к направляющему профилю ПП 28х27. | 4. Произведите финишную отделку (под шпаклевку предусмотрена полка 2 мм). Стык ГКЛ с фланцем диффузора рекомендуется заделать высокопрочной шпаклевкой Унифлот. |
![]() |
![]() |
На примере диффузора ALM-20/1000 при скорости подачи воздуха 1 м/с
| Воздушный поток в сечении диффузора | Потеря давления в сечении диффузора |
![]() |
![]() |
| Воздушный поток по длине щели | |
![]() |
|


На примере диффузора ALM-20/1000 при скорости подачи воздуха 1 м/с
| Воздушный поток в сечении диффузора | Потеря давления в сечении диффузора |
![]() |
![]() |
| Воздушный поток по длине щели | |
![]() |
|


На примере диффузора ALM-20/1000 при скорости подачи воздуха 1 м/с
| Потеря давления в сечении диффузора |
![]() |



При заказе диффузора с камерой статического давления, определяющими размерами являются размеры диффузора, поэтому в примере заказа не указываются. По требованию возможно изготовление КСД по чертежам заказчика.

Цена по запросу
Оставьте заявку на обратную связь и мы поможем с подбором необходимого оборудования и с консультацией